Logo Logo Logo Logo
  • Home
  • Oferta
  • Projekty
  • O nas
  • Kontakt
  • Home
  • Oferta
  • Projekty
  • O nas
  • Kontakt

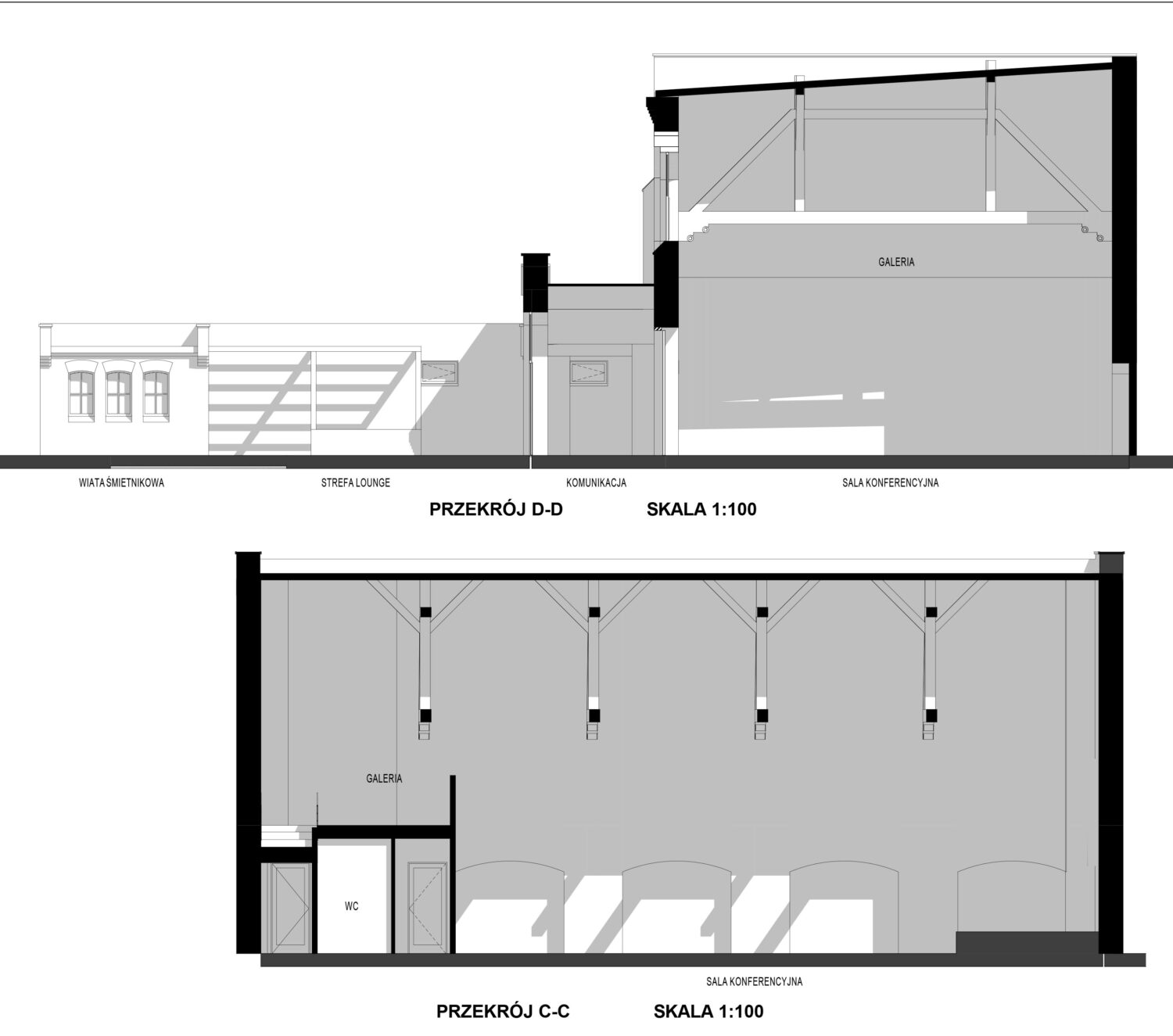
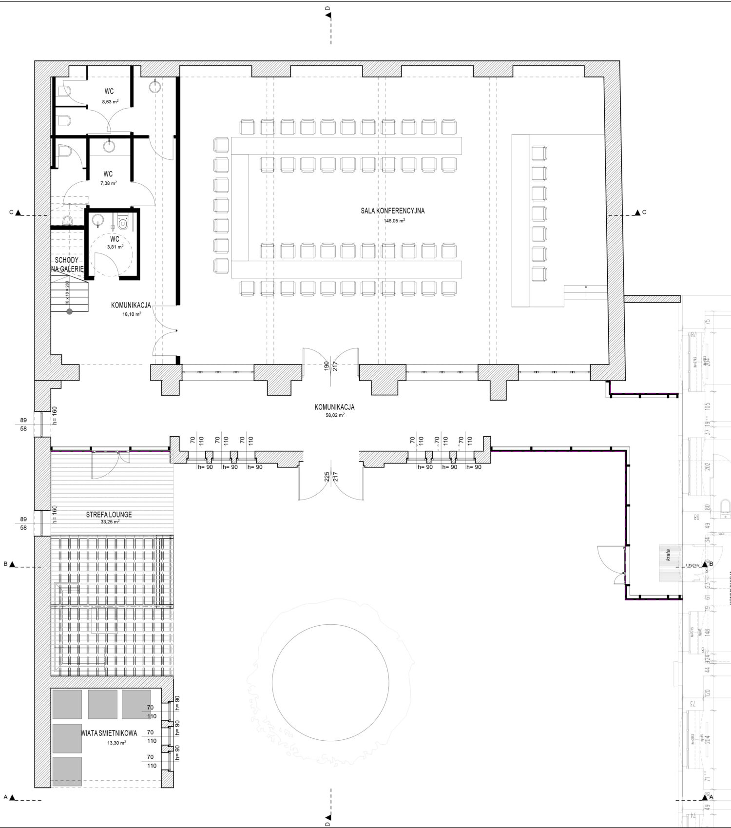
Adaptacja sali sportowej na salę konferencyjną Urzędu Miasta Kołobrzeg

Budynek pod ochroną konserwatorską z późniejszą dobudową pomieszczeń pod zaplecze sali sportowej (szatnie, sanitariaty).

Projekt adaptacji zakłada usunięcie niepotrzebnych funkcyjnie kubatur, zapewnienie bezpośredniej komunikacji z głównym budynkiem urzędu miasta oraz adaptacja głównej przestrzeni sali na potrzeby sali konferencyjnej/ sali obrad

Wizualizacje:

VALO-STUDIO
Date

2023-07-01

Category

Budynki użyteczności publicznej

Kontakt

Pytania? skontaktuj się z
nami! tel. pn- pt 9.00- 17.00.

© Copyright 2020,

architekt Marcin Januszkiewicz
ul. Wiosny Ludów 93/6
71-471 Szczecin
+ 48 691 777 900
biuro@3xma.pl
architekt Krzysztof Rozwałka
Radacz 4
74-446 Silnowo
+ 48 508 125 481
biuro@3xma.pl
a

follow us: