Dom jednorodzinny- projekt indywidualny Marcin Januszkiewicz 3xma

Dom jednorodzinny 0101

Dom jednorodzinny zaprojektowany na potrzeby czteroosobowej rodziny.

 

Ekologiczne rozwiązania powodują że dom ma niski poziom zapotrzebowaniem na EP (energię pierwotną). Niski współczynnik uzyskiwany jest dzięki zastosowaniu wentylacji mechanicznej z rekuperacją, pompy ciepła oraz dużej izolacyjności przegród zewnętrznych.

Podstawowe parametry techniczne:
Źródło ciepła: pompa ciepła

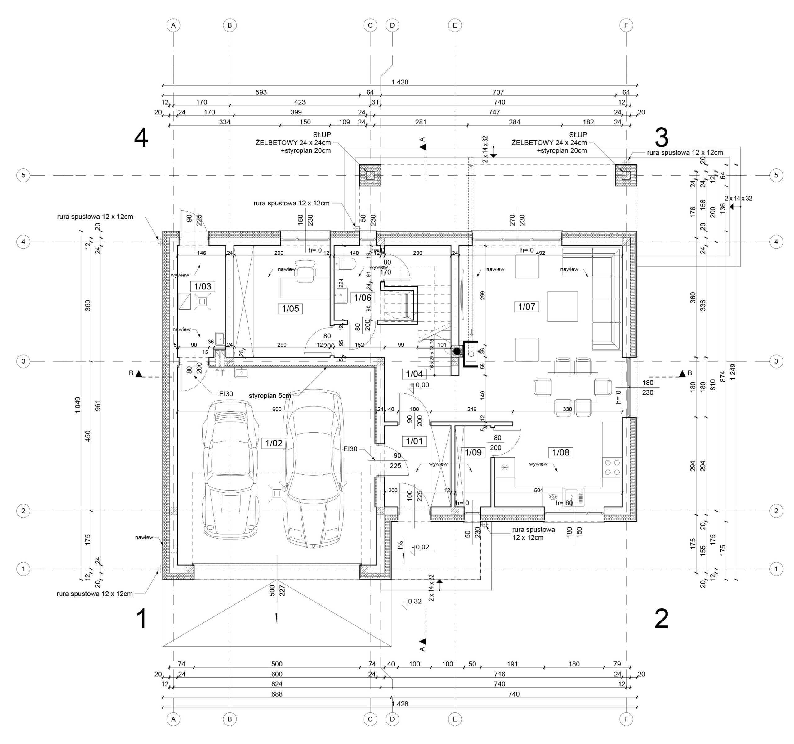
Ilość kondygnacji: 1

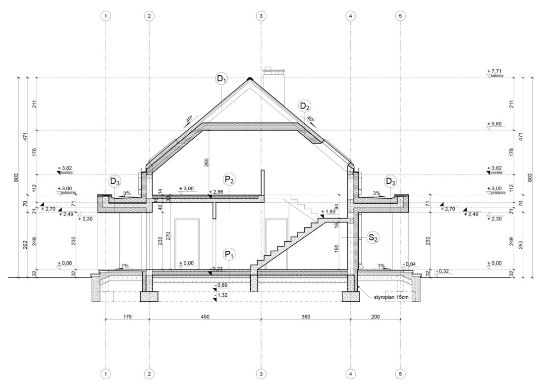
Nachylenie połaci dachowych: 40stopni 

Dach: drewniana więźba dachowa

Szerokość domu: 12,98m

Długość domu: 18,59m

Wysokość budynku: 7,71m

Powierzchnia zabudowy: 206,4m2

Tabela z zestawieniem powierzchni użytkowej
Rysunki techniczne
Wizualizacje

Opracowanie wizualizacji: