Logo Logo Logo Logo
  • Home
  • Oferta
  • Projekty
  • O nas
  • Kontakt
  • Home
  • Oferta
  • Projekty
  • O nas
  • Kontakt

Projekt rozbudowy PWSiP w Łomży- konkurs- WYRÓŻNIENIE! 2020

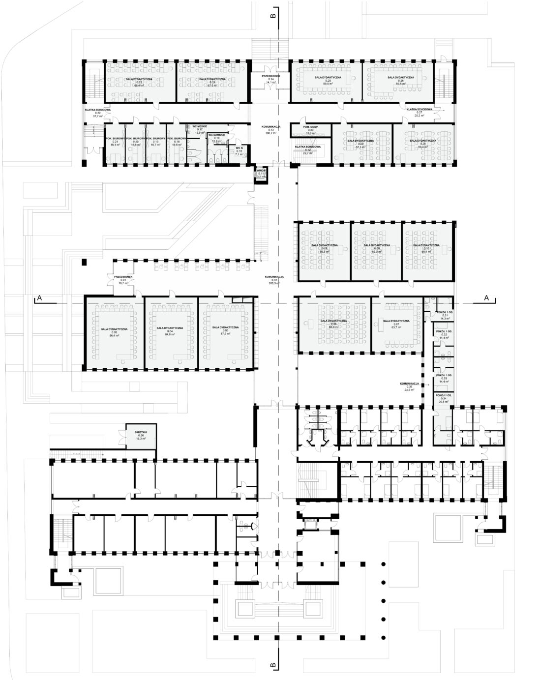
Stworzenie przestrzeni urbanistycznej jak najbardziej scalonej z projektowanym zespołem budynków uczelni, przestrzeni w pełni spełniającej role kampusu PWSIiP oraz atrakcyjnej i wystarczająco pojemnej dla rozrastającej się studenckiej społeczności.  

Uwolnienie przestrzeni na osi  projektowanego łącznika udało się uzyskać dzięki wprowadzeniu miejsc parkingowych pod ziemię. Powstał główny plac z osią kompozycyjną  na kierunku pn.- płd., gdzie od północy oś ta zamknięta jest wysoką zielenią wraz z przestrzenią przeznaczoną na scenę zaś od południa zamknięcie następuje na bryle budynku łącznika wraz z głównym wejściem do niego oraz mini widownią zlokalizowaną w bezpośrednim sąsiedztwie łącznika. Główna oś kompozycyjna została podkreślona również głównym oświetleniem placu o wysokości równej wysokości projektowanego łącznika.

Budynek łącznika od strony kampusu wznosi się na dwie kondygnacje, a od strony płd. zaprojektowana została jedna kondygnacja dydaktyczna przykryta zielonym dachem. W wyższej części na piętrze znajduje się przestrzeń publiczna- forum wraz kawiarnią. Z kawiarni, jak i z głównego ciągu komunikacyjnego, rozpościera się widok na zielony dach niższej części łącznika. Przestrzeń forum ma możliwość wydzielenia za pomocą ścianek mobilnych na wysokości kawiarni. Dzięki temu możliwe jest organizowanie zamkniętych spotkań, konferencji. Dodatkowo przestrzeń forum uatrakcyjniona została poprzez zaprojektowanie przeszklonego dachu wkomponowanego w konstrukcję nośną.

Wizualizacje:

VALO-STUDIO
Date

2024-08-27

Category

Budynki użyteczności publicznej, Projekty konkursowe

Kontakt

Pytania? skontaktuj się z
nami! tel. pn- pt 9.00- 17.00.

© Copyright 2020,

architekt Marcin Januszkiewicz
ul. Wiosny Ludów 93/6
71-471 Szczecin
+ 48 691 777 900
biuro@3xma.pl
architekt Krzysztof Rozwałka
Radacz 4
74-446 Silnowo
+ 48 508 125 481
biuro@3xma.pl
a

follow us: